Мари Андриссенраде 77, 2907 MA Капелле-ан-ден-Эйссел, Нидерланды












Мари Андриссенраде 77, 2907 MA Капелле-ан-ден-Эйссел, Нидерланды
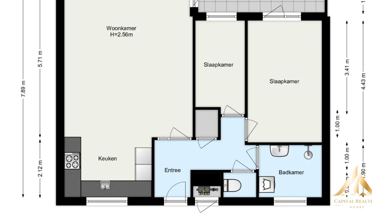
Станет ли это вашим домом? Добро пожаловать в эту современную, отделанную и приятно спланированную 3-комнатную квартиру. Познакомьтесь с уютной гостиной с модной открытой кухней (2021), 2 спальнями, современной ванной комнатой и солнечным балконом. Но не только квартира хороша. Место также предлагает вам множество преимуществ. Идеальное расположение: магазины и супермаркеты буквально за углом (пассаж Пабло Пикассо). Если вы путешествуете на поезде, вы можете быстро дойти до вокзала пешком. А для спокойной прогулки обязательно посетите расположенный неподалеку Шоллебос. Расположена на 1-м этаже небольшого многоквартирного дома с лифтом. Год постройки: 1983. Полезная жилая площадь: 67 м2. Энергетический класс: A. Планировка: Первый этаж. Закрытый вход с видеодомофоном; Прихожая с доступом к лифту и лестничной клетке. Вход в квартиру на 1-м этаже. Просторная прихожая с вешалкой для одежды, большим кладовым шкафом и роскошным туалетом (2021). В просторной и светлой гостиной с открытой кухней вы быстро почувствуете себя как дома. Здесь достаточно места для уютной зоны отдыха и обеденной зоны с большим обеденным столом. Выход на балкон. Полностью оборудованная и со вкусом оформленная современная кухня (2021 год). Угловой модуль с просторной рабочей поверхностью и шкафами. Встроенная бытовая техника: индукционная плита, вытяжка, комбинированная микроволновая печь, холодильник с морозильной камерой и посудомоечная машина. Вид из кухонного окна. В прихожей, гостиной и кухне пол из ПВХ с укладкой «елочкой» из дуба.
Контакты:
+370 688 00077
+370 676 26433
Электронная почта:info@capitalrealting.com
Погрузитесь в неповторимую атмосферу наших объектов. Забронируйте индивидуальный просмотр, чтобы оценить изысканную красоту и уникальные особенности этого предложения.
Наши опытные специалисты проведут вас по объекту и ответят на все ваши вопросы.
211 000 €
Подробнее259 900 €
Подробнее350 000 €
ПодробнееВсе права защищены 2023
Квартира с 2 спальнями, прекрасной террасой и частным парковочным местом с местом для хранения велосипедов в подвале.
Собственный дом - это краеугольный камень богатства... как финансового, так и эмоционального.
Сьюз Орман