









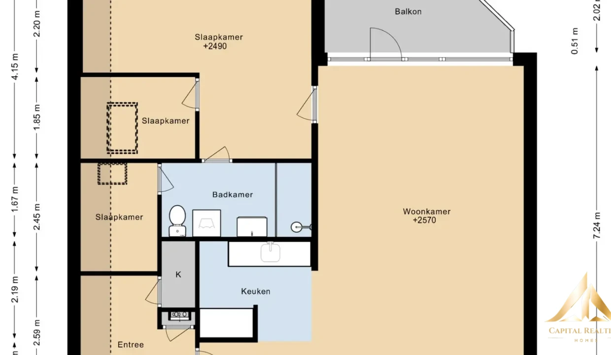
Are you looking for a home that you can still modernize to your own taste? Then this might be your dream home! This apartment offers many possibilities: a spacious and bright living room with semi-open kitchen. Originally, the apartment had two spacious bedrooms, but currently three rooms have been created. The bathroom is finished in neutral tones and equipped with a walk-in shower, sink and second toilet. Because the apartment is located on the top floor, you have a beautiful panoramic view over a green playing field from the balcony. The apartment is located in a small-scale apartment complex and accessible via the elevator or stairwell. The complex is located in a quiet area on the edge of the Ridderveld district. Schools, shopping centers, a swimming pool and the Zegersloot recreation area are a short distance away. The central entrance is located on the ground floor and is equipped with mailboxes, a doorbells, intercom system, elevator and staircase. The storage room with electricity is also located on the ground floor. In addition, there is a shared storage room. The facts at a glance: Attractive corner apartment with balcony and unobstructed views Three bedrooms Screens available Intergas boiler (2025) Sunny balcony facing southeast Ample parking space at the apartment complex Shopping centres, sports fields, the Zegersloot area and schools within a short distance Service costs € 233.76 per month
Contacts:
+370 688 00077
+370 676 26433
email:info@capitalrealting.com
Immerse yourself in the captivating ambiance of our properties. Book a personalized tour to explore the exquisite beauty and unique features of our property.
Our knowledgeable staff will guide you through the property, answering any questions you may have.
212‎ 900 €
View Details1‎ 172‎ 000 €
View Details228‎ 000 €
View DetailsAll Rights Reserved 2023
Wonderfully spacious and bright 4-room apartment with spacious balcony.
Owning a home is a keystone of wealth… both financial affluence and emotional security.
Suze Orman