













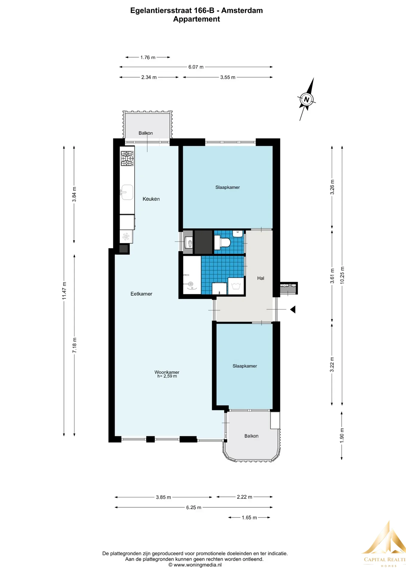
Living in the heart of the Jordaan, on a quiet street yet surrounded by vibrant city life? This spacious 2-bedroom apartment on the first floor offers the best of both worlds. With two bedrooms, two balconies and a spacious private storage room on the ground floor, this is a comfortable and practical apartment in an absolute prime location. LOCATION AND ACCESSIBILITY Egelantiersstraat is a charming and quiet street, within walking distance of iconic landmarks such as the Westertoren, the Anne Frank House, the Noordermarkt and the famous Nine Streets. In the immediate area you will find numerous cozy cafés and restaurants, including La Perla, Café Thijssen and Balthazar’s Keuken. For relaxation, you can easily walk or cycle to Westerpark. Supermarkets, specialty shops and gyms are also within walking distance. Amsterdam Central Station and several tram and bus connections can be reached within minutes. LAYOUT (see floor plans) The apartment features a bright living room, two well-sized bedrooms and two balconies, allowing you to enjoy outdoor space at different times of the day. Via the communal staircase you reach the apartment on the first floor. From the hallway you have access to all rooms. This bright and well-designed apartment features a pleasant through-living room with an open kitchen and no fewer than two balconies. Thanks to the large windows at both the front and rear, the living room benefits from plenty of natural daylight throughout the day.
Contacts:
+370 688 00077
+370 676 26433
email:info@capitalrealting.com
Immerse yourself in the captivating ambiance of our properties. Book a personalized tour to explore the exquisite beauty and unique features of our property.
Our knowledgeable staff will guide you through the property, answering any questions you may have.
425‎ 000 €
View Details210‎ 000 €
View Details163‎ 800 €
View DetailsAll Rights Reserved 2023
Characteristic living with modern comfort and 2 bedrooms!
Owning a home is a keystone of wealth… both financial affluence and emotional security.
Suze Orman