Danės g. 15, Klaipėda, 92117
- Arenagangen 29, 121 77 Johaneshovas, Stokholmas
- +46767800002
- info@capitalrealting.com
Lange Groenendaal 70, Gouda, Nyderlandai













Lange Groenendaal 70, Gouda, Nyderlandai
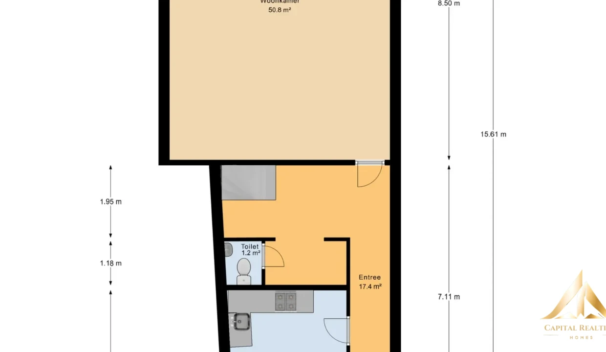
Įsikūręs istoriniame Gaudos centre, gyvybingos prekybos gatvės viduryje, rasite šį stebėtinai erdvų ir charakteringą modernizuojamą mezonetinį namą su dviem erdviais miegamaisiais, labai erdvia 50 m2 svetaine, gražia stogo terasa ir privačia sandėliavimo patalpa su galiniu įėjimu. Visi patogumai yra tiesiogine prasme už kampo: parduotuvės, jaukūs restoranai ir Gaudos turgus yra pėsčiomis pasiekiami. Viešasis transportas (NS tarpmiestinis ir autobusų stotis) ir mokyklos taip pat yra netoliese. Pastatytas 1907 m., gyvenamasis plotas apie 141 m², sandėliavimo patalpa apie 8 m², stogo terasa apie 28 m². Išplanavimas Pirmas aukštas Į kompleksą patenkate pro bendrą įėjimą prekybos gatvėje. Iš čia patenkate į privačias namo duris antrame aukšte su privačia maždaug 28 m2 terasa. Taip pat gale yra praktiška sandėliavimo patalpa su galiniu įėjimu, į kurią patenkama laiptais žemyn. Svetainė (1 aukštas) Pro įėjimą patenkama į erdvų prieškambarį (apie 17,4 m²) su prieiga prie tualeto ir įvairių kambarių. Priekyje yra virtuvė (apie 11,2 m²), kurioje įrengtas virtuvės išplanavimas su dujine virykle, gartraukiu ir kriaukle. Iš virtuvės patenkama į prieškambarį. Name yra labai erdvi ir šviesi svetainė, kurios plotas apie 50,8 m², iš kurios atsiveria gražus vaizdas į prekybos gatvę. Dėl didelių langų daug šviesos ir sukuriama maloni gyvenamoji erdvė su įvairiais išplanavimo variantais. Antras aukštas Iš aikštelės patenkama į miegamuosius, vonios kambarį ir praktišką sandėliavimo patalpą. Priekyje yra erdvus, maždaug 24,3 m² miegamasis, kuris idealiai tinka kaip pagrindinis miegamasis. Gale yra antras miegamasis (apie 14,1 m²), taip pat gero dydžio. Erdviame vonios kambaryje (apie 8,8 m²) yra vonia, dušas, dviguba kriauklė ir tualetas. Be to, yra praktiška spinta / sandėliavimo patalpa, kurioje yra centrinio šildymo katilas.
Kontaktai:
+370 688 00077
+370 676 26433
el:info@capitalrealting.com
Pasinerkite į užburiančią mūsų objektų aplinką. užsisakykite asmeninę ekskursiją ir susipažinkite su išskirtiniu grožiu ir unikaliomis mūsų turto savybėmis.
Mūsų kompetentingi darbuotojai supažindins jus su nuosavybe ir atsakys į visus jums rūpimus klausimus.
199 000 €
Peržiūrėti informaciją230 000 €
Peržiūrėti informaciją204 000 €
Peržiūrėti informacijąVisos teisės saugomos 2023 m.
Tvarkingas ir praktiškai išplanuotas 3 kambarių butas su nedidele terasa.
Nuosavas būstas yra kertinis turto pagrindas... tiek finansinio, tiek emocinio saugumo.
Suze Orman