Danės g. 15, Klaipėda, 92117
- Arenagangen 29, 121 77 Johaneshovas, Stokholmas
- +46767800002
- info@capitalrealting.com
Vallumstraat 163, 2672 HT Naaldwijk, Nyderlandai















Vallumstraat 163, 2672 HT Naaldwijk, Nyderlandai
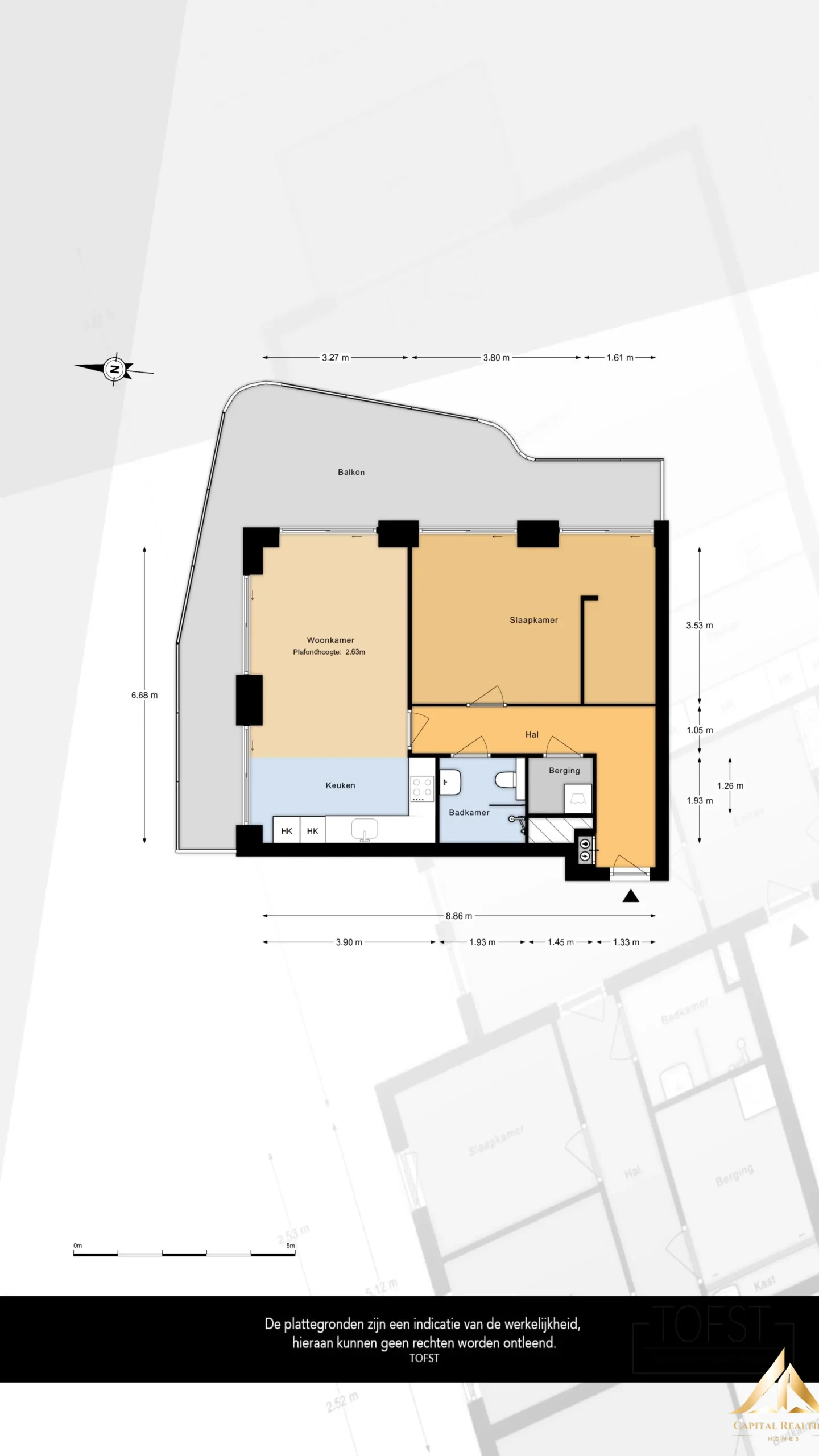
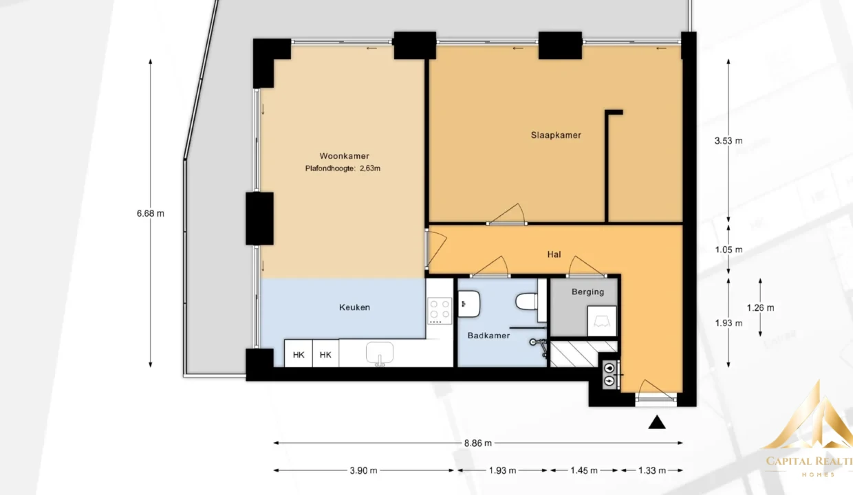
Penktame modernaus daugiabučių komplekso Vallumstraat gatvėje aukšte yra šis paruoštas įsikelti ir efektyviai išplanuotas vieno miegamojo butas su erdvia drabužine. Iš namo atsiveria nuostabi panorama į Naaldwijką ir Hoek van Holland kryptimi, ypač iš erdvios terasos, kurioje čia nuostabiai atsipalaiduojama. Maždaug 63 m² gyvenamasis plotas, viso namo svetainė ir prabangi atvira virtuvė suteikia šiems apartamentams stebėtinai erdvumo pojūtį. Dideli langai ir stumdomos durys suteikia daug šviesos ir puikų ryšį su išore. Dėl A energetinės klasės ir modernių įrenginių čia taip pat galite gyventi tvariai ir patogiai. Namas yra populiariame, vaikams pritaikytame ‘Hoogeland’ rajone Naaldwijke. Artimiausioje aplinkoje rasite mokyklas, sporto klubus, žaidimų aikšteles ir parduotuves. Jaukus Naaldwijko centras taip pat lengvai pasiekiamas dviračiu. Ieškote modernaus buto su erdvia terasa? Tai jūsų šansas! Išplanavimas Pirmame aukšte – daugiabučių kompleksas Uždaras įėjimas su durų skambučiais, vaizdo telefonu ir pašto dėžutėmis. Centrinė salė su liftu ir laiptais į aukštus. Turite vieną privačią parkavimo vietą uždaroje teritorijoje. Taip pat yra bendras dviračių sandėliukas. Butas Įėjus patenkama į erdvų L formos koridorių su skaitiklių spintele. Iš čia patenkama į svetainę, miegamąjį, vonios kambarį ir atskirą techninę / skalbyklą su šilumos siurbliu ir skalbimo mašinos prijungimu. Miegamasis yra erdvus ir turi tiesioginę prieigą prie terasos pro stumdomas duris. Šalia yra erdvi drabužinė, idealiai tinkanti tiems, kurie mėgsta apžvalgos erdvę ir daug vietos daiktams susidėti. Moderniame vonios kambaryje yra pilnai įrengtas dušas su lietaus efektu, rankinis dušas, praustuvas su vieta daiktams susidėti ir tualetas. Salės gale patenkama į šviesią svetainę su atvira virtuve. Erdvei būdingi dideli langai ir kelios stumdomos durys į terasą. Virtuvė stilingai įrengta su juodu stalviršiu, indukcine kaitlente ir kombinuota orkaite. Yra daug vietos jaukiai valgomojo zonai. Erdvi maždaug 34 m² terasa driekiasi aplink namą ir sudaro nuostabią lauko erdvę. Yra daug vietos poilsio zonai, lauko stalui ir šiek tiek žalumos. Dėl įvairių įėjimų iš svetainės ir miegamojo terasa atrodo kaip jūsų gyvenamosios erdvės tęsinys. Čia galite ramiai mėgautis saule ir vaizdu.
Kontaktai:
+370 688 00077
+370 676 26433
el:info@capitalrealting.com
Pasinerkite į užburiančią mūsų objektų aplinką. užsisakykite asmeninę ekskursiją ir susipažinkite su išskirtiniu grožiu ir unikaliomis mūsų turto savybėmis.
Mūsų kompetentingi darbuotojai supažindins jus su nuosavybe ir atsakys į visus jums rūpimus klausimus.
290 000 €
Peržiūrėti informaciją125 000 €
Peržiūrėti informaciją33 000 €
Peržiūrėti informacijąVisos teisės saugomos 2023 m.
Patrauklus butas su erdviu balkonu ir vaizdu į miesto sienas
Nuosavas būstas yra kertinis turto pagrindas... tiek finansinio, tiek emocinio saugumo.
Suze Orman