Danės g. 15, Klaipėda, 92117
- Arenagangen 29, 121 77 Johaneshovas, Stokholmas
- +46767800002
- info@capitalrealting.com
Rembertów, Varšuva, Mazovijos vaivadija, Lenkija












Rembertów, Varšuva, Mazovijos vaivadija, Lenkija
We present a spacious, bright apartment with an area of 89 m², perfect for families or those who appreciate the proximity of nature and the city. The apartment is located on the 3rd floor of a well-maintained building with monitoring.
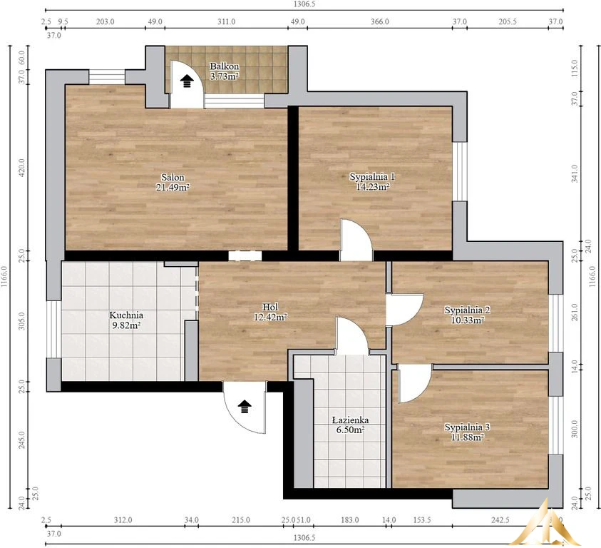
Apartment details:
• Area: 88.6 m²
• Rooms: 4
• Floor: 3 of 4
• Building type: block
• Year of construction: 1987
• Balcony and basement included
• Condition: ready to move in
Kambario išplanavimas:
• Living room – 21.49 m²
• Kitchen – 10.37 m²
• Bedroom 1 – 14.23 m²
• Bedroom 2 – 10.87 m²
• Bedroom 3 – 12.12 m²
• Bathroom – 8.24 m²
• Hallway – 12.68 m²
The apartment features a functional layout, a separate kitchen, and plenty of light thanks to windows facing three directions. The living room offers a view of greenery, creating a pleasant microclimate.
Kompleksas:
The building is well-kept, and the staircase has been renovated. There are many public parking spaces available in the area.
Vieta:
The neighborhood is quiet and green, with over 30% of the area occupied by forests. Nearby, you will find shops, schools, kindergartens, service points, and walking areas. Excellent transportation: buses (143, 196, N24) are just 2-3 minutes away, and PKP Rembertów is a 17-minute walk or a 5-minute bus ride.
Finansai:
The apartment is ready for occupancy, meaning no additional renovation costs.
This apartment is an ideal proposition for families, remote workers, and those who wish to enjoy tranquility without sacrificing urban amenities. Call now to schedule a viewing!
Kontaktai:
+370 688 00077
+370 676 26433
el: info@capitalrealting.com
Pasinerkite į užburiančią mūsų objektų aplinką. užsisakykite asmeninę ekskursiją ir susipažinkite su išskirtiniu grožiu ir unikaliomis mūsų turto savybėmis.
Mūsų kompetentingi darbuotojai supažindins jus su nuosavybe ir atsakys į visus jums rūpimus klausimus.
140 000 €
Peržiūrėti informaciją300 000 €
Peržiūrėti informaciją179 000 €
Peržiūrėti informacijąVisos teisės saugomos 2023 m.
Parduodamas 5 kambarių butas 125,5 m² balkonas Warszawa Włochy
Nuosavas būstas yra kertinis turto pagrindas... tiek finansinio, tiek emocinio saugumo.
Suze Orman