Danės g. 15, Klaipėda, 92117
- Arenagangen 29, 121 77 Johaneshovas, Stokholmas
- +46767800002
- info@capitalrealting.com
Anna van Hensbeeksingel 183, 2803 LS Gauda, Nyderlandai



















Anna van Hensbeeksingel 183, 2803 LS Gauda, Nyderlandai
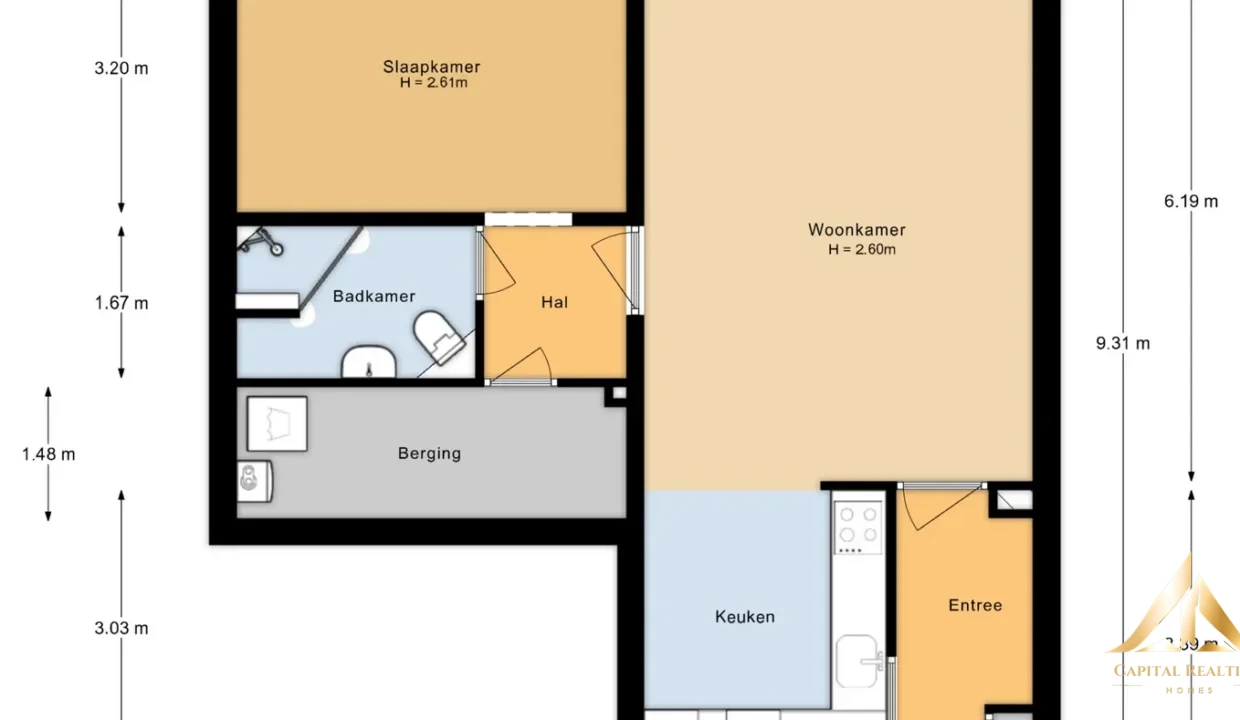
Comfortable 2-room apartment on the ground floor with sunny garden on the water and private storage room, conveniently located near the center and station of Gouda. This well-maintained apartment is located on the ground floor and has a surprisingly spacious backyard right on the water. Thanks to the practical layout, the bright living room and the nice outdoor space, this is an ideal home for starters, singles or couples. At the front there is a private storage room with electricity. The location is central: a short cycling distance from the historic city center of Gouda and the railway station. In addition, the roads to the A12 and A20 are easily accessible, which ensures an excellent connection to surrounding cities. Hightlighted Features: · Spacious and practical apartment · Modern kitchen · Spacious and sunny backyard right on the water · Private storage room at the front with electricity · Intergas boiler (2025) · Equipped with insulating glazing · Façade and roof insulation available · Exterior painting carried out in 2020
Kontaktai:
+370 688 00077
+370 676 26433
el:info@capitalrealting.com
Pasinerkite į užburiančią mūsų objektų aplinką. užsisakykite asmeninę ekskursiją ir susipažinkite su išskirtiniu grožiu ir unikaliomis mūsų turto savybėmis.
Mūsų kompetentingi darbuotojai supažindins jus su nuosavybe ir atsakys į visus jums rūpimus klausimus.
395 000 €
Peržiūrėti informaciją600 000 €
Peržiūrėti informaciją119 900 €
Peržiūrėti informacijąVisos teisės saugomos 2023 m.
2 kambarių butas, kurio gyvenamasis plotas 59,7 m². Jauki stogo terasa.
Nuosavas būstas yra kertinis turto pagrindas... tiek finansinio, tiek emocinio saugumo.
Suze Orman