3773 CA Barneveld, Países Bajos










3773 CA Barneveld, Países Bajos
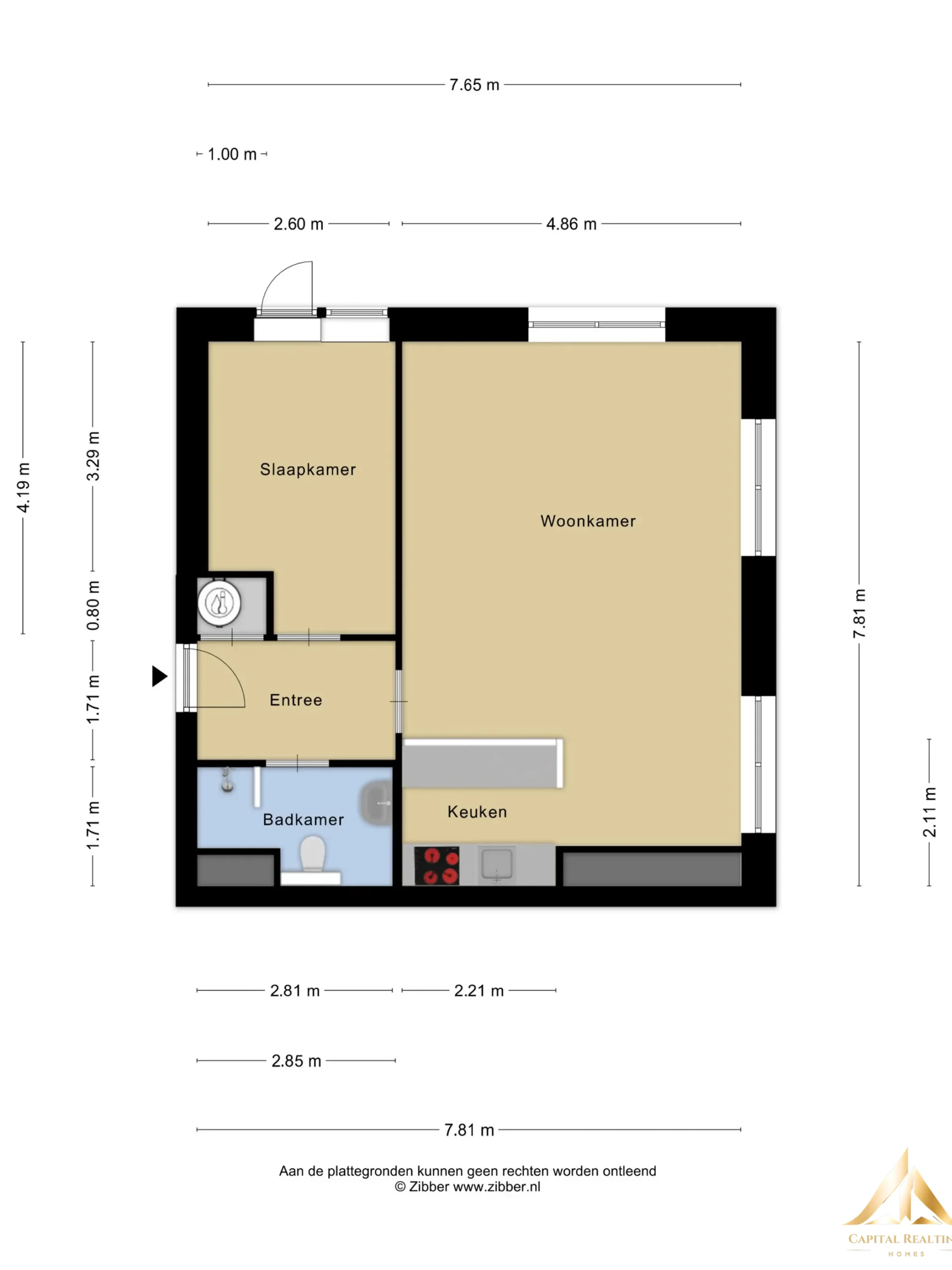
Este apartamento de 2 habitaciones listo para entrar a vivir, con plaza de aparcamiento privada, trastero independiente y aparcamiento compartido para bicicletas, se encuentra en una ubicación céntrica en la zona residencial 'Norschoten'. El apartamento está situado en la segunda planta de un pequeño complejo y cuenta con un luminoso salón, una cocina moderna, un baño en buen estado y un dormitorio. Con una superficie habitable de 59 m² y un supermercado a poca distancia, se trata de un apartamento cómodo y práctico en una buena ubicación céntrica. Entrada/recibidor: A través de la entrada central se accede a un recibidor ordenado. Se puede subir a la segunda planta por las escaleras. Desde el recibidor también se tiene acceso al trastero privado y al aparcamiento compartido para bicicletas, ambos situados en la planta baja. A través de la puerta principal se accede al recibidor del apartamento. Desde este recibidor se accede al baño, al salón con cocina, al armario de contadores y al dormitorio. Salón: El amplio y luminoso salón está elegantemente acabado con un suelo laminado oscuro, rodapiés altos y focos empotrados. Enseguida te sorprenderán las ventanas, que proporcionan una luz agradable. Gracias a su ubicación en la segunda planta, también podrás disfrutar de unas vistas preciosas. Además, el salón dispone de un buen aire acondicionado para mayor comodidad en verano. Cocina: La moderna cocina abierta, en tonos oscuros, está equipada con una placa de inducción de 4 fuegos con campana extractora, lavavajillas, frigorífico y congelador. La cocina tiene mucho espacio de almacenamiento. Dormitorio: El recibidor da acceso a un dormitorio bien cuidado, con un bonito suelo de vinilo. La puerta y la ventana exteriores también proporcionan mucha luz natural. Baño: El baño, completamente alicatado, tiene ducha a ras de suelo, lavabo, inodoro y conexiones para electrodomésticos. Entorno: El apartamento está situado en una zona residencial bonita y de fácil acceso, en Norschoten. El amplio barrio cuenta con un amplio aparcamiento y servicios básicos como supermercado, colegios e instalaciones deportivas a poca distancia a pie. El centro del pueblo de Barneveld está a poca distancia y se puede llegar a las autopistas A30 y A1 en 10 minutos en coche.
Contactos:
+370 688 00077
+370 676 26433
correo electrónico:info@capitalrealting.com
Sumérjase en el cautivador ambiente de nuestras propiedades. Reserve un tour personalizado para explorar la exquisita belleza y las características únicas de nuestra propiedad.
Nuestro personal experto lo guiará a través de la propiedad y responderá cualquier pregunta que pueda tener.
169 000 €
Ver detalles230 000 €
Ver detalles289 000 €
Ver detallesTodos los derechos reservados 2023
¡Moderno y luminoso apartamento de 2 habitaciones en la última planta!
Ser propietario de una vivienda es la piedra angular de la riqueza... tanto de la prosperidad económica como de la seguridad emocional.
Suze Orman